
Where Design Meets the East Bay Lifestyle
Spaces planned for the way local families and businesses grow

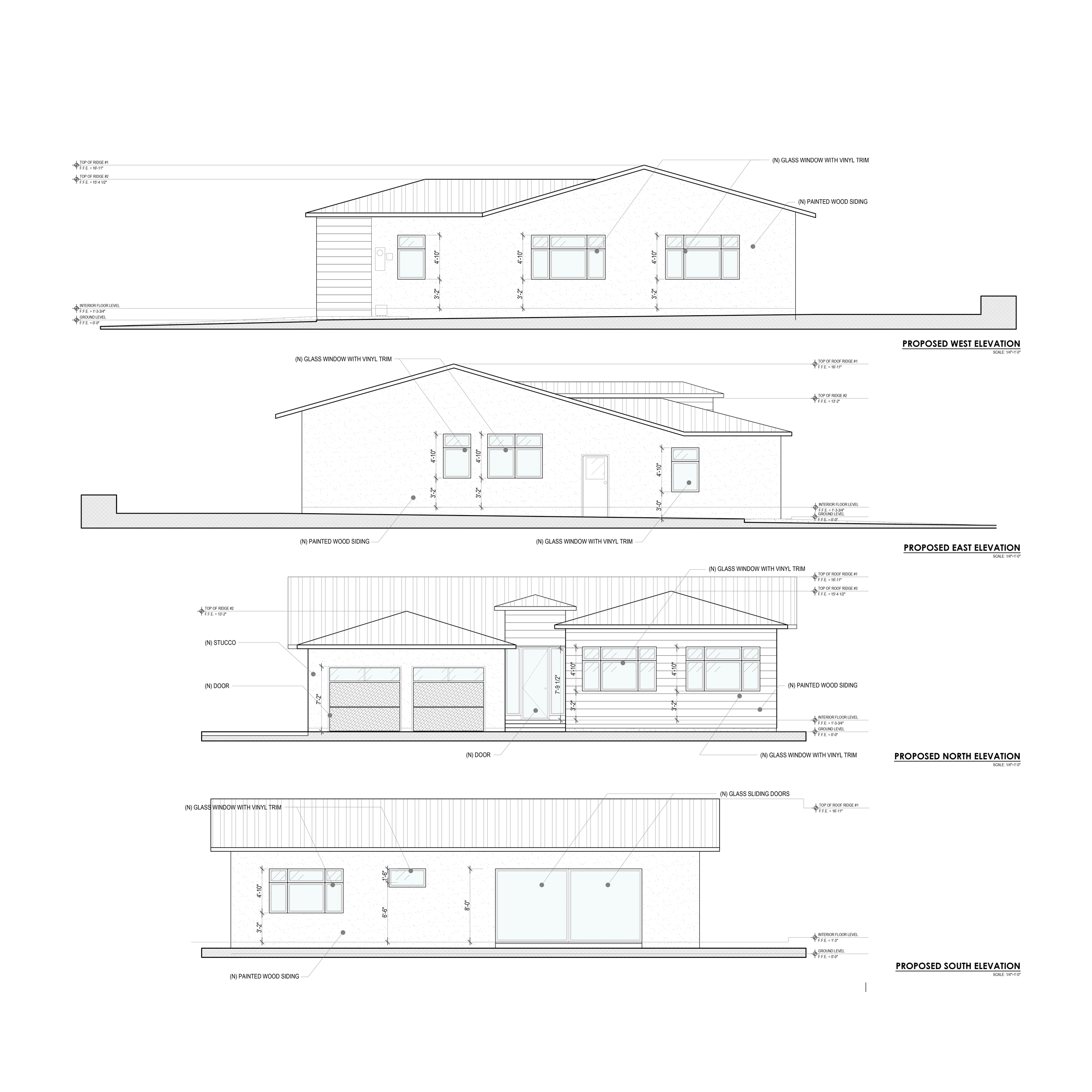
Spaces planned for the way local families and businesses grow
We offer a wide range of construction and trade services for homes, businesses, and industrial projects.

Homes, additions, and remodels designed for comfort and everyday living.

Efficient, modern spaces for offices, retail, and local businesses.

Support with zoning, Title 24, and county requirements compliance.

Guidance during construction to maintain design intent accuracy.

With years of experience in the carpentry industry, Oakridge Carpenter And Joinery has built a reputation for excellence. Our skilled team of tradesmen, engineers, and project managers work together to bring your vision and dream to life, ensuring every project is completed on time and within your budget.
Residential and commercial work shaped by Contra Costa’s landscape.






Real voices from real projects. Our clients share how our design approach has improved their spaces — and their lives.

Prakash Math
Francisco helped me with legalization of ADU in San Francisco. Anyone who has worked with San Francisco building requirements and getting work done in the city knows how challenging it can be. Francisco is extremely knowledgeable about how things works in the city, He guided me through the entire process. When my plans changed, he helped navigate the complex system. He was patient and responded in a timely fashion. I am very thankful, especially given how busy he is. You are in good hands if you work with Francisco.

Joseph Michael
Francisco was thorough in reviewing our house so that we could complete our 100+ year old restoration. He went back and forth between DBI and our home project making sure that everything was just right. We enjoyed working with Francisco; he’s an easy person to talk to and knew what was needed to get our permits approved.

Marcus Fathi Said
Architects SF has been a steadfast partner for us through 10+ complex, multi-million dollar renovations in San Francisco. Our projects range from $300,000 to $2,000,000 in renovation budget. They are the “go-to” for us whenever we get stuck with the city’s ridiculous permitting process. Their knowledge and persistence has gotten us unstuck numerous times, which clearly sets them apart from other architects.


Feasibility & Site Evaluation
We review zoning, site conditions, and county requirements.

Concept Design + Options
We develop efficient, modern solutions tailored to the project.

Plans & Approvals
We prepare documentation and manage local submittals.

Construction Support
We guide the build to protect design intent and quality.

Final Review & Completion
We verify details and ensure the project meets the intended vision.